Lokalizacja Praga, ul. Darwina 18, budynek z cegły.
Do sprzedaży jednopokojowe mieszkanie położone na 2piętrze w 4-pietrowym budynku. Mieszkanie o powierzchni 32,70m2. Wysokość mieszkania 2,80m. Okna wychodzą na podwórko z zielenią, na stronę południową, cicho. Bardzo ładne mieszkanie, widne, ciepłe, przestronne.
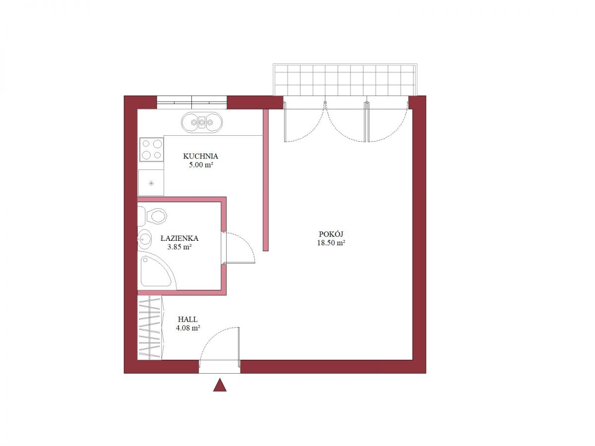
Rozkład mieszkania:
Pokój (18,5m2) z wyjściem na balkon. Trzy skrzydłowe okno, na podłodze ładny parkiet dębowy.
Kuchnia z oknem (5m2) zabudowa kuchenna z kuchnią gazową, lodówka.
Łazienka (3,90m2) terakota i glazura, kabina prysznicowa pralka, szafka w zabudowie.
Hol z szafą.
Mieszkanie jest zadbane, do wprowadzenia od zaraz.
Do mieszkania przynależy piwnica z oknem o powierzchni około 8m2.
Mieszkanie ma możliwości aranżacyjne aby przerobić je na 2 pokoje z aneksem kuchennym.
Budynek został wybudowany w 1958r, z cegły, dobrze utrzymany i zadbany, 4 lokale na piętrze. W 2011 roku przeprowadzono remont elewacji i docieplenie. Budynek jest wpisany do gminnej ewidencji zabytków.
Możliwość parkowania samochodu na ulicy pod budynkiem.
LOKALIZACJA jest bardzo dobra pod względem komunikacji , przystanki autobusowe i tramwajowe w odległości 200m. Dworzec kolejowy Warszawa ZOO w odległości 12 min pieszo.
Blisko także do miejsc odpoczynku i relaksu (w pobliżu Park Praski, ZOO, plaże nad Wisłą, kładka rowerowa na prawą stronę Warszawy). Teatry i kina. Bogata infrastruktura: liczne sklepy, szkoły, usługi, przychodnie, basen, bazarek CH Wileńska.
Czynsz administracyjny 540zł msc.
Stan prawny : własność z księgą wieczystą bez żadnych obciążeń, można kupić na kredyt.
Zapraszamy na prezentację.
545 000,00 PLN (16 667,00 PLN)
Jednopokojowe mieszkanie#balkon#piwnica#cegła
Mieszkanie na sprzedaż,
Warszawa, Karola Darwina
Dane szczegółowe
- Typ transakcji: sprzedaż
- Typ nieruchomości: Mieszkanie
- Lokalizacja: Warszawa Praga-Północ Nowa Praga, Karola Darwina
- Powierzchnia:32,70 m2
- Liczba pokoi: 1
- Rok budowy: 1958
- Piętro: 2 z 4
- Numer oferty: 34964533365
- Cena: 545 000,00 PLN
- Cena za m2: 16 667,00 PLN
Kontakt z agentem: Białe Lwy - Nieruchomości
Białe Lwy - Nieruchomości
Opis nieruchomości
Wirtualny spacer po nieruchomości
Mapa
Kontakt z agentem
Białe Lwy - Nieruchomości