Przedstawiamy ofertę sprzedaży przestronnego i jasnego mieszkania w kamienicy Nad Odrą (Stołczyn) z bardzo dużym potencjałem. Kilka lat temu wymieniona została instalacja elektryczna i hydraulika, łazienka i kuchnia także są po remoncie. Okna PCV w bardzo dobrym stanie.
Mieszkanie:
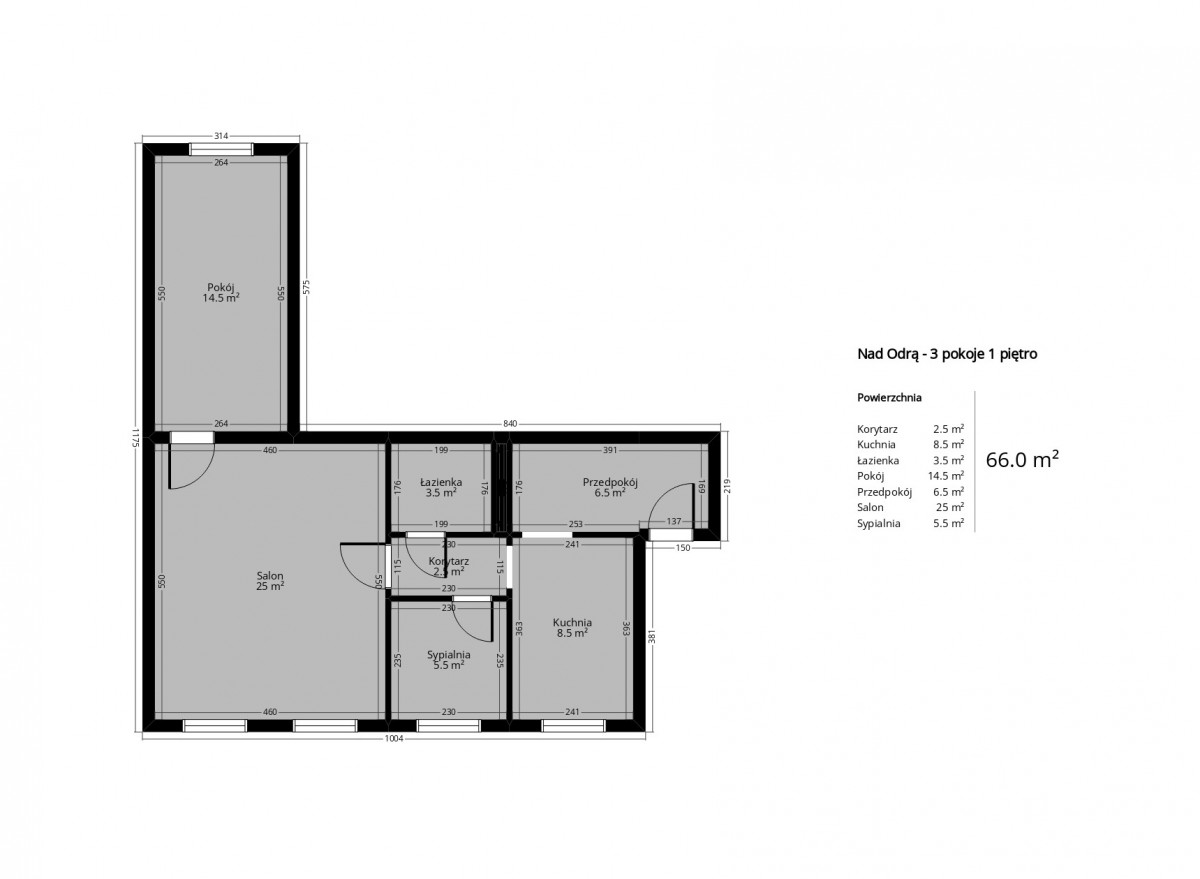
* powierzchnia 66,02mkw
* wysokość pomieszczeń 315cm
* 1 piętro w 3 piętrowej kamienicy
* 3 pokoje: bardzo duży i ustawny przechodni salon (25mkw), drugi pokój (15mkw), sypialnia (6mkw), do tego przestronna i widna kuchnia (9mkw), łazienka z prysznicem i WC (4mkw) oraz przedpokój z miejscem na dużą szafę (7mkw) i korytarz (3mkw)
* CO i ciepła woda z pieca elektrycznego
* okna PCV wymienione kilka lat temu, rolety
* orientacja na wschód i zachód
Okolica:
Mieszkanie położone jest przy ulicy Nad Odrą w północnym obszarze miasta, w dzielnicy Stołczyn. W porównaniu z bardziej centralnymi rejonami miasta jest to raczej spokojna okolica, co może odpowiadać osobom przedkładającym spokój nad intensywne miejskie życie. Dla osób niezmotoryzowanych dojazd do miasta zapewnią autobusy linii 58 i 102. W odległości 600m znajduje się przystanek końcowy tramwaju linii 6. Ponadto w niedługim czasie nieopodal uruchomiona zostanie Szczecińska Kolej Metropolitalna zapewniająca szybki dostęp zarówno do Szczecina, jak i Polic, Goleniowa i Stargardu. Dookoła znajdziemy dużo zielonych zakątków, w tym Park Leśny Kupały z Wieżą Bismarcka. Budynek położony jest vis a vis Mariny Gocławskiej. Najbliższy sklep osiedlowy oddalony jest o 150 m, a kolejny o około 700. Dojazd do najbliższego centrum handlowego, Vendo Parku, zajmuje 5 minut.
Ważne:
* Koszt utrzymania przy 3 osobach to zaledwie 519zł i obejmuje czynsz z funduszem remontowym i zaliczkami na zimną wodę i ścieki
* brak gazu w lokalu
* nowa elektryka i hydraulika
* przynależna duża piwnica 9mkw
* dostępna instalacja kablowa
329 000,00 PLN (4 983,34 PLN)
Przestronne i jasne 3 pokoje do wprowadzenia
Mieszkanie na sprzedaż,
Szczecin, Nad Odrą
Dane szczegółowe
- Typ transakcji: sprzedaż
- Typ nieruchomości: Mieszkanie
- Lokalizacja: Szczecin Stołczyn, Nad Odrą
- Powierzchnia:66,02 m2
- Liczba pokoi: 3
- Rok budowy: 1930
- Piętro: 1 z 3
- Numer oferty: 34964537748
- Cena: 329 000,00 PLN
- Cena za m2: 4 983,34 PLN
Kontakt z agentem: Białe Lwy - Nieruchomości
Białe Lwy - Nieruchomości
Opis nieruchomości
Mapa
Kontakt z agentem
Białe Lwy - Nieruchomości