Przedstawiamy ofertę sprzedaży mieszkania w kameralnej niskiej kamienicy (tylko 6 rodzin) w Podjuchach niedaleko Placu Szewińskiej, ale położonej w cichej bocznej uliczce. W cenie mieszkania jest przynależy ogródek o powierzchni około 20mkw oraz garaż blaszany.
Istnieje możliwość łatwego przywrócenia dawnego układu, ale także dowolnego kształtowania przestrzeni dziennej, dzięki czemu uzyskamy przestronny salon z aneksem kuchennym i częścią jadalnianą (rzut i wizualizacja).
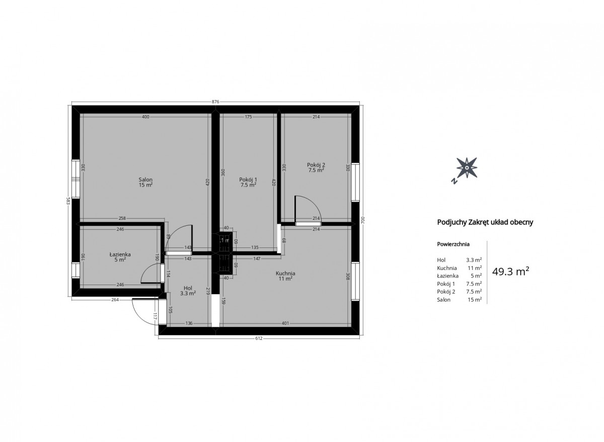
Mieszkanie:
* powierzchnia 49,3mkw
* pierwotnie 2 pokoje (obecnie 3), kuchnia, łazienka i przedpokój
* na podłogach panele (pokoje) i gres (pozostała część), ściany gładzone i malowane
* CO i ciepła woda z nowoczesnego pieca gazowego (w pokojach grzejniki, podłogówka w kuchni i łazience)
* wymieniona instalacja elektryczna
* okna PCV po wymianie wychodzące na obie strony
* przynależna piwnica, a także ogródek (15mkw) i garaż blaszany
Budynek:
*mieszkanie znajduje się na parterze w 2 piętrowym domu wielorodzinnym
*fasada świeżo po odnowieniu wykonana wraz z izolacją pionową
*dach po remoncie (adaptacje)
*zadbane podwórko
Okolica:
Dom znajduje się w wyjątkowo atrakcyjnej lokalizacji — w zacisznej uliczce w pobliżu Placu Szewińskiej, w spokojnych i zielonych Podjuchach. To miejsce, które łączy komfort miejskiego życia z bliskością natury. W bezpośrednim otoczeniu dostępne są sklepy, punkty usługowe, szkoła, przedszkole oraz przystanki komunikacji miejskiej, co zapewnia wygodę na co dzień.
Okolica słynie z przyjaznej atmosfery i dużej ilości terenów zielonych. W kilka minut można dotrzeć do malowniczych tras spacerowych i rowerowych prowadzących w kierunku Puszczy Bukowej — idealnej dla osób aktywnych oraz wszystkich, którzy cenią odpoczynek na świeżym powietrzu.
Lokalizacja zapewnia szybki dojazd do centrum Szczecina i wjazd na trasę A6, a jednocześnie umożliwia korzystanie z uroków spokojnej, kameralnej dzielnicy. To doskonały wybór dla osób poszukujących miejsca oferującego zarówno wygodę, jak i codzienny kontakt z naturą.
Ważne:
* Koszty utrzymania przy 3 osobach to zaledwie 350zł i obejmuje czynsz z funduszem remontowym i zaliczkami na wodę
* koszty gazu to 350zł/mieś. Zimą i 80zł/mieś. latem
* nowa elektryka i hydraulika
* przynależna piwnica, ogródek i garaż
* dostępna kablówka Orange
349 000,00 PLN (7 079,11 PLN)
2-3 pokoje | Podjuchy | parter | ogródek + garaż
Mieszkanie na sprzedaż,
Szczecin, Zakręt
Dane szczegółowe
- Typ transakcji: sprzedaż
- Typ nieruchomości: Mieszkanie
- Lokalizacja: Szczecin Podjuchy, Zakręt
- Powierzchnia:49,30 m2
- Liczba pokoi: 3
- Rok budowy: 1960
- Piętro: 0 z 2
- Numer oferty: 34964537740
- Cena: 349 000,00 PLN
- Cena za m2: 7 079,11 PLN
Kontakt z agentem: Białe Lwy - Nieruchomości
Białe Lwy - Nieruchomości
Opis nieruchomości
Mapa
Kontakt z agentem
Białe Lwy - Nieruchomości