280 000,00 PLN (5 755,40 PLN)

Przytulne 2 pokoje z dużym balkonem i windą

Mieszkanie na sprzedaż,
Sosnowiec, Gabriela Narutowicza

Kontakt z agentem: Białe Lwy - Nieruchomości
Białe Lwy - Nieruchomości
Opis nieruchomości

Szukasz 2 pokojowego mieszkania w bloku z windą? Zależy Ci na osobnej łazience i WC? Koniecznie z dużym balkonem?

Mam coś dla Ciebie!

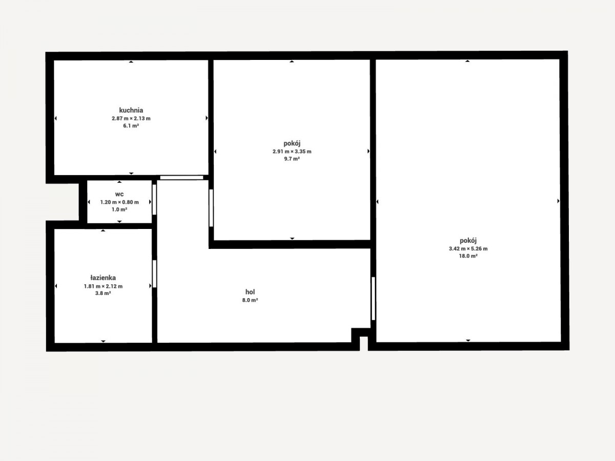
Na sprzedaż funkcjonalne 2pokojowe mieszkanie, położone na 8 piętrze, w doskonałej lokalizacji Sosnowca.


Podstawowe informacje:


  • powierzchnia 48,65 m²;

  • jasny, ustawny salon;

  • balkon z ekspozycją na wschód;

  • sypialnia;

  • osobna kuchnia z oknem;

  • komfortowa łazienka wyposażona zarówno w prysznic, jak i wannę;

  • przestronny przedpokój z ogromną szafą w zabudowie;

  • Spółdzielnia Mieszkaniowa Sielec.


Atuty nieruchomości:


  • balkon z pięknym widokiem na panoramę miasta,

  • praktyczny rozkład pomieszczeń - mieszkanie idealne dla pary, rodziny lub pod wynajem,

  • budynek z windą, zadbana klatka schodowa,

  • ogrzewanie oraz ciepła woda użytkowa z sieci miejskiej,

  • piwnica oraz komórka lokatorska.


Lokalizacja:

Sosnowiec, ul. Narutowicza - spokojne, dobrze skomunikowane osiedle, blisko komunikacji miejskiej, sklepów, punktów usługowych, szkół i terenów zielonych.

 

To mieszkanie łączy w sobie komfort, funkcjonalny układ i dogodną lokalizację. Gotowe do zamieszkania po odświeżeniu według własnych potrzeb.

 

Nie czekaj - umów się na prezentację już teraz!

Mapa
Kontakt z agentem

Białe Lwy - Nieruchomości

Białe Lwy - Nieruchomości
Nieprawidłowy adres E-mail

Strona korzysta z plików cookie w celu realizacji usług zgodnie z Polityką prywatności. Możesz określić warunki przechowywania lub dostępu do cookie w Twojej przeglądarce.