Nowoczesny, dwupoziomowy apartament z tarasem i widokiem na Zatokę - Mechelinki, Osiedle Anchoria!
Wyjątkowa propozycja dla osób poszukujących komfortu, prywatności i nadmorskiego stylu życia - idealna zarówno do zamieszkania, jak i jako inwestycja premium.
GŁÓWNE ATUTY
-Prestiżowa, nadmorska lokalizacja - Mechelinki
-Widok na Zatokę Pucką
-Dwupoziomowy, funkcjonalny układ
-Przestronny taras na dachu o powierzchni ok. 50 m²
-Wysoki standard wykończenia
-Sauna w łazience
-Kameralne osiedle
-Miejsce garażowe oraz dodatkowe miejsce postojowe
-Budynek z 2018 roku
LOKALIZACJA
Apartament położony jest przy ul. Regatowej w Mechelinkach, na cenionym i kameralnym Osiedlu Anchoria. To miejsce łączące spokój nadmorskiej miejscowości z bliskością Trójmiasta.
W bezpośrednim sąsiedztwie znajdują się:
-plaża i molo,
-trasy spacerowe i rowerowe,
-restauracje i kawiarnie,
-tereny rekreacyjne.
Lokalizacja idealna zarówno dla miłośników ciszy i natury, jak i osób szukających prestiżowej nieruchomości wakacyjnej lub inwestycyjnej.
APARTAMENT
Na sprzedaż przestronny, dwupoziomowy apartament o powierzchni 108,18 m², usytuowany na ostatniej kondygnacji budynku. Wnętrze zaprojektowane z myślą o komforcie i funkcjonalności, z wyraźnym podziałem na strefę dzienną i prywatną.
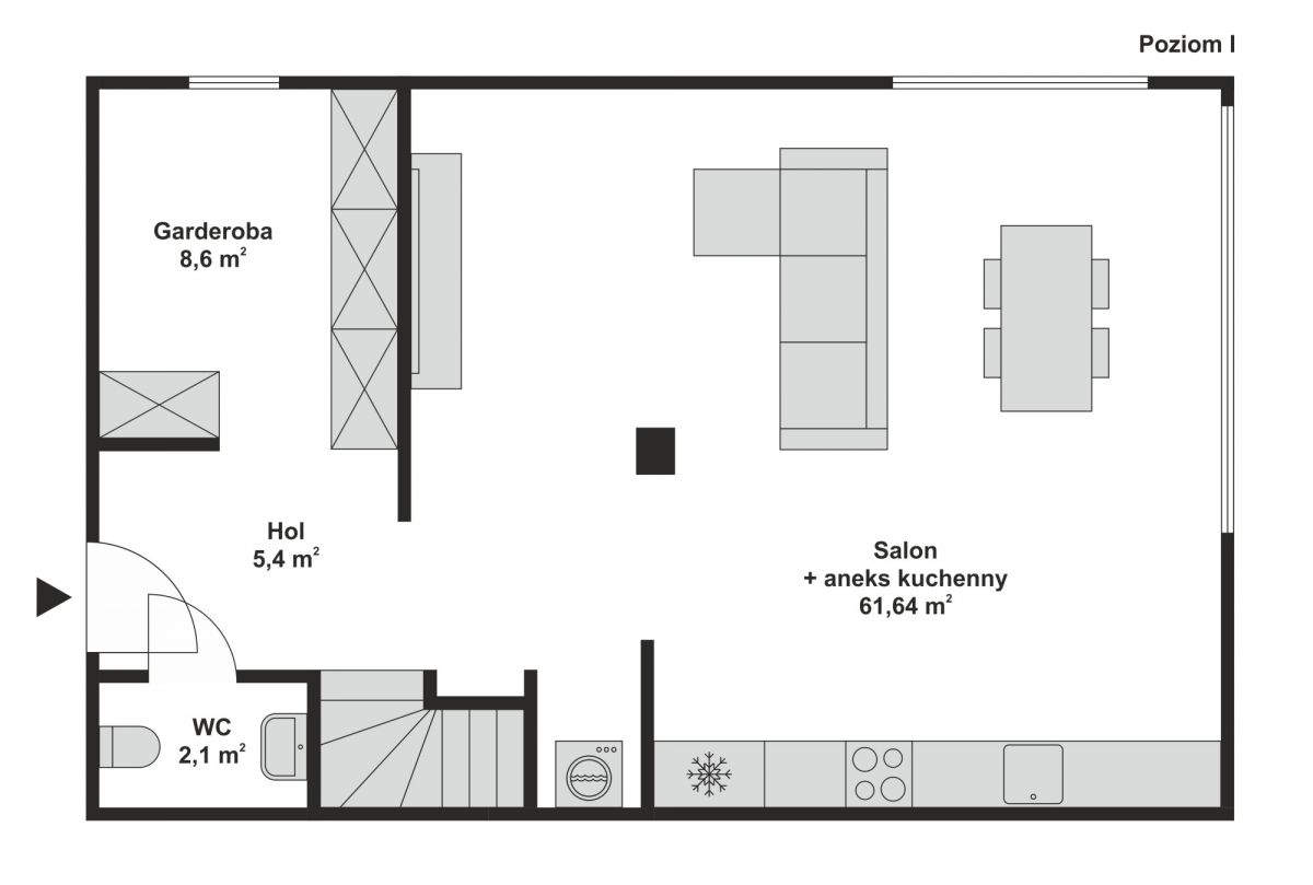
Układ pomieszczeń:
Poziom I:
-przestronny salon z aneksem kuchennym,
-toaleta,
-garderoba,
-pokój gospodarczy z pralnią.
Poziom II:
-komfortowa sypialnia z bezpośrednim wyjściem na taras,
-łazienka wyposażona w wannę, prysznic oraz saunę,
-druga toaleta.
Dodatkowym atutem jest taras na dachu o powierzchni ok. 50m², oferujący spektakularny widok na Zatokę - idealne miejsce do relaksu, spotkań towarzyskich czy wypoczynku o zachodzie słońca.
BUDYNEK
Apartament znajduje się w kameralnym, nowoczesnym budynku z 2018 roku, wykonanym w technologii betonowej. Brak windy rekompensuje niewielka liczba kondygnacji oraz poczucie prywatności. Osiedle jest zadbane i spokojne, z estetycznymi częściami wspólnymi.
INFORMACJE DODATKOWE
-ogrzewanie: miejskie,
-czynsz: ok. 850 zł,
-stan prawny: pełna własność,
-rynek: wtórny,
-do apartamentu przynależy miejsce garażowe oraz miejsce postojowe.
Zapraszam do kontaktu!
1 750 000,00 PLN (16 176,74 PLN)
2-poziomowy apartament z widokiem na Zatokę!
Mieszkanie na sprzedaż,
Mechelinki, Regatowa
Dane szczegółowe
- Typ transakcji: sprzedaż
- Typ nieruchomości: Mieszkanie
- Lokalizacja: Mechelinki, Regatowa
- Powierzchnia:108,18 m2
- Liczba pokoi: 4
- Rok budowy: 2018
- Piętro: 1 z 2
- Numer oferty: 34964540026
- Cena: 1 750 000,00 PLN
- Cena za m2: 16 176,74 PLN
Kontakt z agentem: Białe Lwy - Nieruchomości
Białe Lwy - Nieruchomości
Opis nieruchomości
Mapa
Kontakt z agentem
Białe Lwy - Nieruchomości