Nowoczesna inwestycja deweloperska w Chorzowie!
Zapraszamy do zapoznania się z ofertą sprzedaży kilkunastu mieszkań w nowo powstającym, nowoczesnym budynku w Chorzowie - Starym.
Na pięciu piętrach powstaje łącznie 16 mieszkań dopasowanych do różnych potrzeb klientów, od dwupokojowych 47 m2 do komfortowych apartamentów o metrażu 115 i 130 m2.
Wszystkie mieszkania posiadają swój własny balkon, a dla apartamentów na pierwszym piętrze dodatkowo dostępne również tarasy.
Budynek będzie wyposażony w cichobieżną windę.
Miejsca parkingowe znajdują się w hali garażowej parteru budynku
Komórki lokatorskie umieszczone są na półpiętrach oraz na parterze.
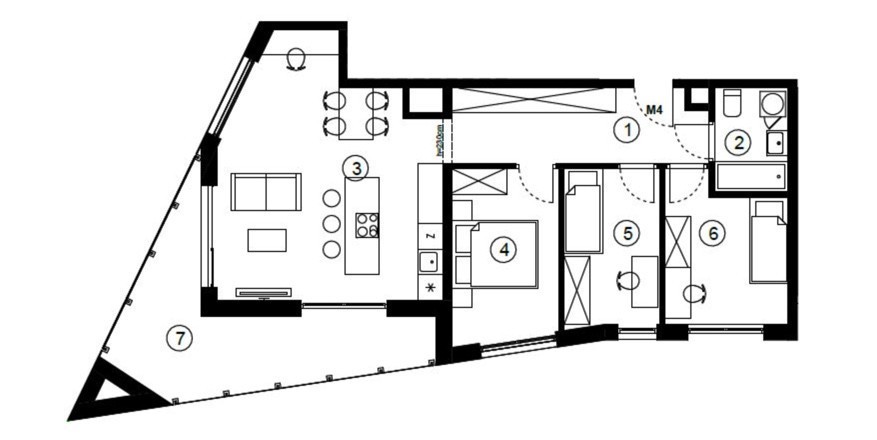
Oferta dotyczy mieszkania nr 04 o pow. 70,12 m2, znajdującego się na 1 piętrze składającego się z:
• przedpokoju,
• łazienki,
• pokoju dziennego z aneksem kuchennym,
• pokoju 1
• pokoju 2
• pokoju 3
• dodatkowo loggi o powierzchni 15,33m2.
Ekonomiczne i komfortowe użytkowanie zapewniać będzie indywidualnie, zdalnie sterowane ogrzewanie podłogowe z sieci miejskiej z regulacją temperatury w każdym pomieszczeniu ze sterowaniem WiFi.
Dopełnieniem najwyższych standardów wykończenia będzie zastosowanie rozwiązań i materiałów zapewniających wysoką izolację termiczną oraz akustyczną.
Budynek:
* zastosowano stropy monolityczne o grubości 25cm uzyskując większą sztywność (mniej zarysowań na ściankach działowych) oraz lepszą izolacyjność akustyczną od sąsiadów,
* znaczna ilość elementów żelbetowych,
* posadowienie na solidnej płycie fundamentowej,
* zwiększone współczynniki bezpieczeństwa na łącznikach balkonowych
* wysokość pomieszczeń na pietrach 1-4: 2,60 cm
* wysokość pomieszczeń na ostatniej kondygnacji|: 2,80 cm
* drzwi zewnętrzne o zwiększonej izolacyjności akustycznej,
* okna z pakietem szybowym o zwiększonej izolacyjności akustycznej (4 tafle szkła - 2 ostatnie laminowane razem warstwą folii wzmacniającej),
* elektryczne rolety zewnętrzne,
* monitoring części wspólnych budynku.
Sprzedaż mieszkań objęta jest bardzo bezpieczną dla Kupujących ustawą deweloperską, płatności są rozłożone w ratach, których wysokość uzależniona jest od stopnia zaawansowania prac budowlanych.
Zakończenie budowy i pełne oddanie do użytkowania przewidziane jest na koniec roku 2025, jednak zawierając już teraz umowę rezerwacyjną, a następnie umowę deweloperską zyskujesz gwarancję ceny mieszkania w podwyższonym stanie deweloperskim na promocyjnym poziomie.
Zachęcamy do kontaktu i zapraszamy do wizyty na inwestycji, gdzie w bezpośredniej rozmowie z Deweloperem-Pasjonatem poznasz wiele dodatkowych, szczegółowych informacji o inwestycji.
638 183,00 PLN (9 100,00 PLN)
4 pokoje/loggia/ winda/wysoka jakość wykonania
Mieszkanie na sprzedaż,
Chorzów, Tadeusza Kościuszki
Dane szczegółowe
- Typ transakcji: sprzedaż
- Typ nieruchomości: Mieszkanie
- Lokalizacja: Chorzów, Tadeusza Kościuszki
- Powierzchnia:70,13 m2
- Liczba pokoi: 4
- Rok budowy: 2025
- Piętro: 1 z 5
- Numer oferty: 34964532932
- Cena: 638 183,00 PLN
- Cena za m2: 9 100,00 PLN
Kontakt z agentem: Białe Lwy - Nieruchomości
Białe Lwy - Nieruchomości
Opis nieruchomości
Mapa
Kontakt z agentem
Białe Lwy - Nieruchomości