Przedstawiam państwu kawalerkę o powierzchni 25 m², położona na 3. piętrze w niskim, czteropiętrowym bloku z lat 70., zlokalizowaną na os. Przyjaźni w Buku. Jest to mieszkanie idealne jako inwestycja pod wynajem, sprawdzi się również jako pierwsze lokum dla singla lub pary.
Układ pomieszczeń:
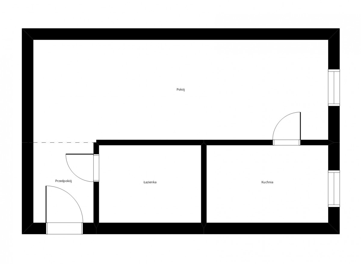
- Pokój dzienny (16,5 m²),
- kuchnia (4,5 m²),
- Łazienka (2,7 m²),
- Korytarz (1,3 m²).
Mieszkanie w stanie do generalnego remontu, co daje możliwość aranżacji według własnych potrzeb.
Budynek nie posiada windy. Klatka schodowa czysta i utrzymana w dobrym stanie technicznym.
Do mieszkania przynależy piwnica. Przed budynkiem znajdują się ogólnodostępne miejsca parkingowe dla mieszkańców. Budynek położony w spokojnej części osiedla, z dużą ilością zieleni w otoczeniu.
Czynsz administracyjny wynosi około 320 zł i obejmuje m.in. zaliczki na ogrzewanie, wodę, fundusz remontowy oraz utrzymanie części wspólnych.
Lokalizacja
Osiedle Przyjaźni to niemalże centralna część Buku - w bezpośrednim sąsiedztwie znajdują się sklepy spożywcze, punkty usługowe, apteki, szkoły oraz przystanek autobusowy (zaledwie kilka kroków od budynku). W niedalekiej odległości dostępne są tereny zielone i rekreacyjne, co stanowi atut dla osób ceniących bliskość natury przy jednoczesnym dostępie do miejskiej infrastruktury.
165 000,00 PLN (6 600,00 PLN)
Kawalerka w Buku do generalnego remontu
Mieszkanie na sprzedaż,
Buk, Przyjaźni
Dane szczegółowe
- Typ transakcji: sprzedaż
- Typ nieruchomości: Mieszkanie
- Lokalizacja: Buk, Przyjaźni
- Powierzchnia:25 m2
- Liczba pokoi: 1
- Rok budowy: 1970
- Piętro: 3 z 4
- Numer oferty: 34964521600
- Cena: 165 000,00 PLN
- Cena za m2: 6 600,00 PLN
Kontakt z agentem: Białe Lwy - Nieruchomości
Białe Lwy - Nieruchomości
Opis nieruchomości
Mapa
Kontakt z agentem
Białe Lwy - Nieruchomości