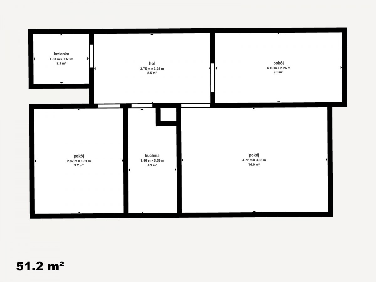
Metraż i układ
Przestronne, 54 m² - mieszkanie z trzema pokojami, usytuowane na 8. piętrze w dobrze utrzymanym bloku z windą. Dodatkowo balkon z pięknym widokiem na góry.
Znakomita lokalizacja na Osiedlu Beskidzkim - pełna infrastruktura w zasięgu ręki:
sklepy spożywcze (Lewiatan, Netto, Żabka) i piekarnia tuż pod blokiem;
apteka, przychodnia, poczta i lokale gastronomiczne (pizzerie, puby) w pobliżu;
przystanki autobusowe i taksówka ok. 600 m - szybki dojazd do centrum, Katowic, Cieszyna i drogi S1;
szkoły podstawowe, przedszkola i żłobek w odległości 100-250 m - idealne dla rodzin
Zieleń i rekreacja
Osiedle otoczone terenami zielonymi i rekreacyjnymi - idealne miejsce na spacery i wypady rowerowe, do lotniska i w stronę lasu Kamienica - ok. 3 km .
Budynek i udogodnienia
Budynek ocieplony, czysta i zadbana klatka schodowa, nowoczesne 2 windy (towarowa i osobowa)
Dużo miejsc parkingowych;
Dlaczego warto?
Widok - otwarte panoramy na góry i miasto z 8. piętra;
Funkcjonalność - 3 pokoje, balkon, piwnica
Infrastruktura - wszystko pod ręką, nie trzeba samochodu;
Dojazd - komfortowy do centrum i tras wylotowych;
Rekreacja - zieleń, ścieżki, bliskość terenów rekreacyjnych i górskich tras.
Podsumowując
Idealna propozycja dla rodzin, inwestorów lub osób szukających komfortu miejskiego życia w otoczeniu natury z pięknym widokiem.
480 000,00 PLN (8 921,93 PLN)
Balkon z widokiem na góry, piwnica
Mieszkanie na sprzedaż,
Bielsko-Biała
Dane szczegółowe
- Typ transakcji: sprzedaż
- Typ nieruchomości: Mieszkanie
- Lokalizacja: Bielsko-Biała
- Powierzchnia:53,80 m2
- Liczba pokoi: 3
- Piętro: 8 z 10
- Numer oferty: 34964525482
- Cena: 480 000,00 PLN
- Cena za m2: 8 921,93 PLN
Kontakt z agentem: Białe Lwy - Nieruchomości
Białe Lwy - Nieruchomości
Opis nieruchomości
Mapa
Kontakt z agentem
Białe Lwy - Nieruchomości