5 900,00 PLN (26,82 PLN)

W cenie parking dla pracowników/klientów Ochrona

Komercyjny na wynajem,
Mosina

Kontakt z agentem: Białe Lwy - Nieruchomości
Białe Lwy - Nieruchomości
Opis nieruchomości

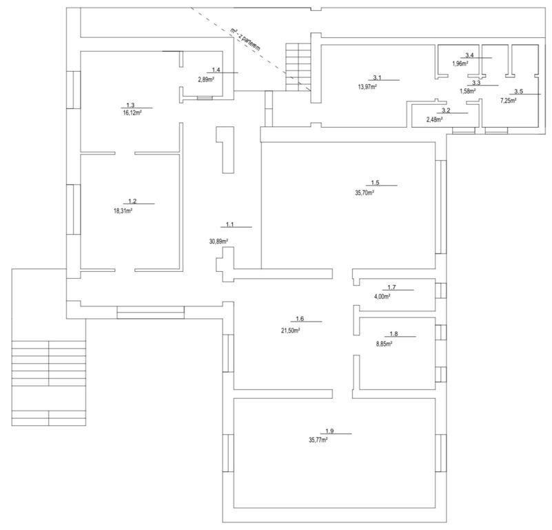
Do wynajęcia przestronny budynek o powierzchni ok. 220 m2, w którego skład wchodzi 5 niezależnych pomieszczeń oraz przestrzeń socjalna (kuchnia, jadalnia, łazienka, toalety, 4 wc).

Lokal doskonale sprawdzi się zarówno dla firm szukających wygodnej przestrzeni biurowej, jak i organizacji, które wymagają podziału na kilka niezależnych stanowisk pracy - gabinety medyczne, salki szkoleniowe, ćwiczeniowe, lekcyjne.

Bardzo dobre warunki pracy dla zespołu nawet kilkunastu osób.

Lokal usytuowany jest w Mosinie przy ul. Krasickiego w spokojnej okolicy, z bliskim dojazdem do centrum drogą asfaltową.


BUDYNEK

- powierzchnia całkowita ok. 220 m2, dodatkowo możliwość wynajmu ok. 40 m2 w widnym, dobrze doświetlonym przyziemiu - idealne np. na magazyn, sprawdzi się też jako dodatkowe pomieszczenie do pracy
- wszystkie pomieszczenia znajdują się na jednej kondygnacji
- jasne i ustawne wnętrza pozwalające na dostosowanie układu do indywidualnych potrzeb najemcy
- 5 przestronnych pomieszczeń mogących pełnić funkcje biurowe i wiele innych wg pomysłu i potrzeb najemcy
- dodatkowo kuchnia z miejscem na spożywanie posiłków
- łazienka z prysznicem, 2 toalety, w tym jedna z 3 kabinami
- pomieszczenia komunikacyjne i gospodarcze
- w budynku światłowód
- pomieszczenia częściowo klimatyzowane


LOKALIZACJA

- budynek monitorowany, ogrodzony płotem
- wjazd zabezpieczony szlabanem oraz budynkiem portierni, co zwiększa bezpieczeństwo i kontrole ruchu
- przy wejściu na teren zastosowano system RCP (Rejestracji Czasu Pracy) - możliwa dodatkowa, nieodpłatna usługa dla najemcy
- dogodny dojazd drogą asfaltową z możliwością parkowania wielu samochodów
- teren licznie zadrzewiony, z okien rozpościera się widok na zieleń
- w pobliżu znajdują się: market spożywczy, Żabka, paczkomaty, przystanki autobusowe, sklep zoologiczny, kiosk z prasą

Istnieje możliwość dostosowania układu do potrzeb najemcy.

To idealna propozycja dla przedsiębiorstw ceniących bezpieczeństwo, dobrą infrastrukturę oraz wygodę codziennego funkcjonowania.
W Mosinie nie ma poznańskich korków, dojedziemy tu PKP i autobusem.


KOSZTY NAJMU

Czynsz najmu dla właściciela 5900 pln netto media (ogrzewanie, prąd, woda) śmieci Internet (światłowód)
Dla chętnych możliwość wynajęcia dodatkowej przestrzeni ok. 40 m2 w cenie 1000 pln netto

Wynajmujący wystawia faktury VAT.

Wymagana KAUCJA zabezpieczająca.



Zapraszam do kontaktu oraz na umówienie prezentacji.


Mapa
Kontakt z agentem

Białe Lwy - Nieruchomości

Białe Lwy - Nieruchomości
Nieprawidłowy adres E-mail

Strona korzysta z plików cookie w celu realizacji usług zgodnie z Polityką prywatności. Możesz określić warunki przechowywania lub dostępu do cookie w Twojej przeglądarce.