760 000,00 PLN (2 695,04 PLN)

Sprzedaż działki z projektem domu– ul. Czarna Rola

Działka (Budowlana) na sprzedaż,
Poznań, Czarna Rola

Kontakt z agentem: Białe Lwy - Nieruchomości
Białe Lwy - Nieruchomości
Opis nieruchomości

Na sprzedaż - działka budowlana, ul. Czarna Rola 33A, Poznań
(Winogrady / Stare Miasto) 

* powierzchnia działki - 282 m2
* wymiary działki 6m x 47m
* wszystkie przyłącza są w drodze, księga działki nie jest obciążona

 Lokalizacja:
Działka położona jest przy ul. Czarna Rola 33A, w rejonie Winograd, w dzielnicy Stare Miasto. To doskonała lokalizacja dla osób, które chcą mieszkać blisko centrum Poznania, a jednocześnie cenią spokój i sąsiedztwo zieleni

Okolica:
* w sąsiedztwie zabudowa jednorodzinna i kameralne budynki wielorodzinne,
* szybki dojazd do centrum Poznania,
* pełna infrastruktura: sklepy, punkty usługowe, szkoły i przedszkola,
* dobra komunikacja miejska (tramwaje i autobusy w zasięgu kilku minut),
* blisko tereny spacerowe i rekreacyjne

Parametry działki:
* przeznaczenie: budowlana, pod zabudowę szeregową
* media w drodze: prąd, woda, gaz, kanalizacja,
* działka ustawna, w kształcie prostokąta,
* dojazd drogą utwardzoną/asfaltową.

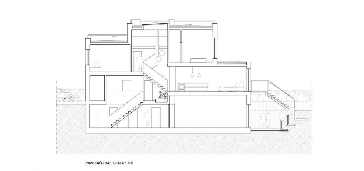
Sprzedaż działki z projektem domu:
SLIM HOUSE
- jako uzupełnienie zabudowy szeregowej na osiedlu domów jednorodzinnych na Winogradach w Poznaniu.

Dom zaprojektowany na planie prostokąta, ma dwie kondygnacje nadziemne i jedną podziemną.
Podział na strefy funkcjonalne opiera się na koncepcji zapewnienia jak największej ilości naturalnego światła.
Sypialnie, salon z aneksem oraz salę do ćwiczeń umieszczono bezpośrednio przy elewacjach.
Przestrzeń ta stanowi serce budynku, łącząc ze sobą wszystkie funkcje.

Całość projektu wraz z wizualizacjami do wglądu w ofercie.



Zapraszam na prezentację
Elżbieta Mieloch nr. licencji: 28721
elzbieta.mieloch@kwpoland.com
+ 48 666 331 664
Keller Williams Partners Real Estate Partners Sp. z o.o.Ul. Bednarska 6 60-571 Poznań

Mapa
Kontakt z agentem

Białe Lwy - Nieruchomości

Białe Lwy - Nieruchomości
Nieprawidłowy adres E-mail

Strona korzysta z plików cookie w celu realizacji usług zgodnie z Polityką prywatności. Możesz określić warunki przechowywania lub dostępu do cookie w Twojej przeglądarce.