5 500,00 PLN (69,03 PLN)

Nowiutki z pełnym wyposażeniem

Dom (Półbliźniak) na wynajem,
Poznań, Łosiowa

Kontakt z agentem: Białe Lwy - Nieruchomości
Białe Lwy - Nieruchomości
Opis nieruchomości

Nowoczesny dom w zabudowie bliźniaczej — gotowy do zamieszkania

Z przyjemnością prezentuję ofertę wynajmu nowego, w pełni wykończonego domu jednorodzinnego w zabudowie bliźniaczej, położonego w spokojnej części Poznania.

To idealna propozycja dla osób, które marzą o komforcie własnego domu — z szybkim dojazdem do centrum i dostępem do pełnej miejskiej infrastruktury.

Lokalizacja

Nieruchomość znajduje się w pobliżu centrum handlowego Franowo oraz IKEA, z doskonałym dostępem do komunikacji miejskiej.

Okolica łączy w sobie spokój kameralnego osiedla domów jednorodzinnych z wygodą bliskości sklepów, punktów usługowych i terenów rekreacyjnych.

Opis nieruchomości

Przedmiotem najmu jest lokal mieszkalny nr 1, pierwszy od frontu budynku.

Cała posesja jest ogrodzona, z automatyczną bramą wjazdową, estetycznym podjazdem z kostki betonowej, tarasem oraz miejscem na zieleń.

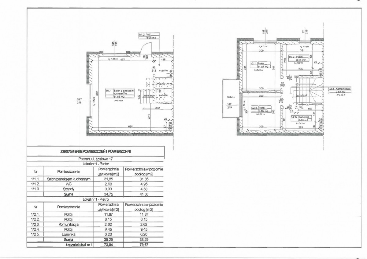
Dom o powierzchni 79,67 m² (użytkowej 73,04 m²) wyróżnia się nowoczesną architekturą, funkcjonalnym układem pomieszczeń i wysokim standardem wykończenia.

Duże przeszklenia i ekspozycja południowo-zachodnia sprawiają, że wnętrza są jasne, przestronne i przytulne.

Powierzchnia całkowita działki wynosi 318 m², z czego do lokalu przynależy 106 m² części prywatnej oraz 55 m² części wspólnej (wjazd i miejsca postojowe).

Rozkład pomieszczeń

Parter (34,75 m²):

Przestronny salon z aneksem kuchennym - 31,85 m²

Toaleta - 2,90 m²

Wyjście na taras

Piętro (38,29 m²):

3 ustawne sypialnie - 11,87 m², 9,45 m² (z balkonem) oraz 8,15 m²

Łazienka - 6,20 m²

Korytarz - 2,62 m²

Balkon - 3,00 m²

Pomieszczenia na piętrze są bez skosów, co zwiększa komfort użytkowania.

Standard wykończenia:

Dom został urządzony z dbałością o detale.

Nowoczesna zabudowa kuchenna (czarny + drewno) z nowym sprzętem AGD: lodówka, zmywarka, piekarnik, okap, płyta grzewcza, zlewozmywak

Łazienka w stylu czarnego marmuru - z wanną, pralką, lustrem i meblami na wymiar

Podłogi: gres wielkoformatowy (parter), panele w sypialniach

Szklane balustrady na schodach i balkonie

Okna PCV trzyszybowe z automatycznymi roletami

Ogrzewanie podłogowe na parterze i w łazienkach, grzejniki w sypialniach

Nowoczesny piec gazowy Junkers

Drzwi antywłamaniowe w kolorze grafitowym

Taras wyłożony kostką betonową

Dane techniczne:

Ściany z bloczków + ocieplenie 20 cm styropianem

Strop żelbetowy, dach Teriva z izolacją 15 cm

Ocieplony dach płaski pokryty papą

Rolety zewnętrzne automatyczne

Ogrodzenie murowane z nowoczesnymi panelami

Brama wjazdowa na pilota

Miejsca postojowe przy budynku i przed posesją

Wszystkie media miejskie: woda, prąd, gaz, kanalizacja

Dla kogo?

Dom idealny dla pary, rodziny z dzieckiem lub osób ceniących prywatność i komfort życia w nowym budownictwie.

Warunki najmu:

- dom dostępny od razu
- wyposażenie sypialni do uzgodnienia
- czynsz 5.500 zł miesięcznie
- kaucja - 8.000 zł
- media płatne według zużycia (prąd, woda, gaz, wywóz śmieci)
- najem okazjonalny, minimum 12 miesięcy
- mile widziane osoby pracujące

Chcesz dowiedzieć się więcej lub umówić na prezentację?
Zapraszam, zadzwoń i umów się na spotkanie - to miejsce, w którym można zamieszkać od razu!

 

Dane o nieruchomości zostały przedstawione na podstawie dokumentów i informacji udzielonych przez właściciela nieruchomości, mają jedynie charakter informacyjny i nie stanowią oferty zgodnie z przepisami prawa w rozumieniu art. 66 i art. 71 Kodeksu Cywilnego. 















Wskaźnik rocznego zapotrzebowania na energię użytkową (EU): 79.43 kWh/(m2 · rok).
Wskaźnik rocznego zapotrzebowania na energię końcową (EK): 106.02 kWh/(m2 · rok).
Wskaźnik rocznego zapotrzebowania na nieodnawialną energię pierwotną (EP): 119.00 kWh/(m2 · rok).
Jednostkowa wielkość emisji CO2 (E CO2): 0.02 t CO2/(m2 · rok).
Udział odnawialnych źródeł energii w rocznym zapotrzebowaniu na energię końcową (U OZE): 0.00 %.

Mapa
Kontakt z agentem

Białe Lwy - Nieruchomości

Białe Lwy - Nieruchomości
Nieprawidłowy adres E-mail

Strona korzysta z plików cookie w celu realizacji usług zgodnie z Polityką prywatności. Możesz określić warunki przechowywania lub dostępu do cookie w Twojej przeglądarce.