Dom w zabudowie szeregowej w Bibicach o powierzchni około 120 m2. z poddaszem użytkowym.
Na działce o powierzchni 13 ara. Do centrum Krakowa dojedziemy w 7 minut.
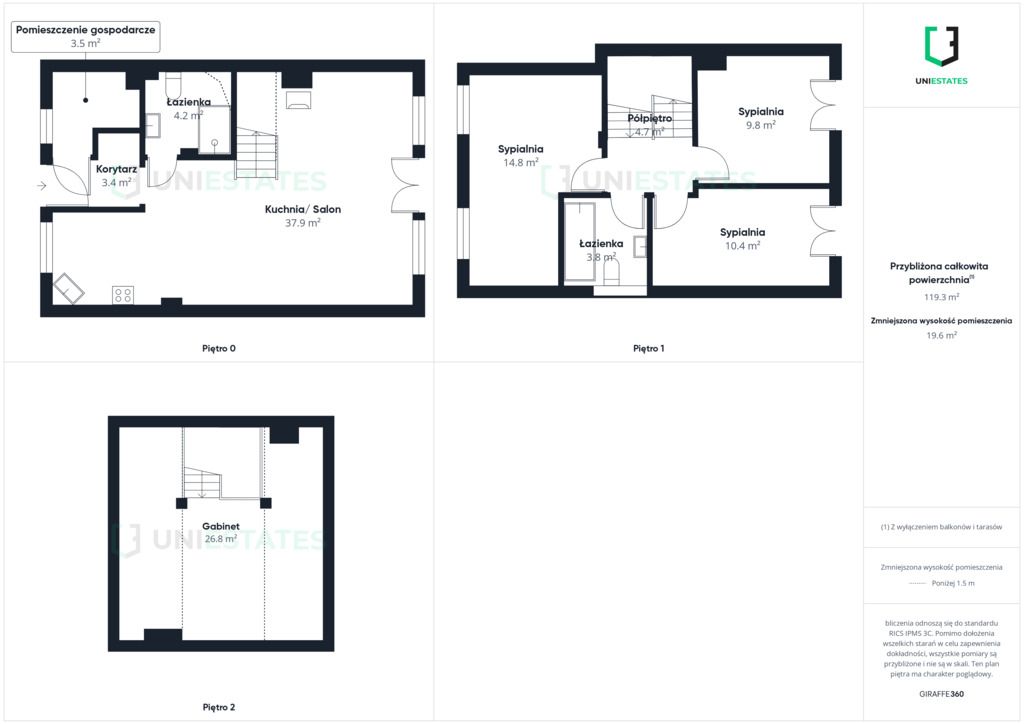
Informacje techniczne:
Na działce dostęp do infrastruktury technicznej (gaz, prąd, woda, kanalizacja). Dojazd do działki drogą wewnętrzną wybrukowaną. Dom miał odbiór w 2012 roku, zadbany, nie wymagający wkładu finansowego. Ogrzewanie jest z pieca gazowego dwufunkcyjnego. W domu zamontowany uzdatniacz wody, klimatyzacja, kominek.
Dom:
Parter: salon, kuchnia, łazienka, przedpokój, kotłownia
1 Piętro: 3 pokoje, łazienka, przedpokój
2 Piętro: duży pokój
Do domu przynależy duży taras oraz 2 balkony
Do domu przynależy miejsce postojowe
Lokalizacja:
Dom umiejscowiony przy ul. Leśnej w Bibicach. W najbliższym otoczeniu pełna infrastruktura usługowo - handlowa. Bardzo dobry dojazd do centrum. Znajdują się również przystanki MPK.
Jestem otwarty na współpracę z innymi biurami. Zapraszam na prezentacje. Zapewniam wsparcie przy uzyskaniu kredytu.
Przedstawione ogłoszenie ma charakter wyłącznie informacyjny i nie stanowi oferty w rozumieniu art. 66 par. 1 Kodeksu cywilnego. Biuro Nieruchomości dokłada starań, aby treść ogłoszeń była rzetelna i aktualna, jednak nie ponosi odpowiedzialności za ewentualne nieścisłości, błędy lub nieaktualność ogłoszeniaTerraced house in Bibice, approximately 120 m², with an attic.
On a 13-are plot. Krakow city center is a 7-minute drive away.
Technical information:
The plot has access to utilities (gas, electricity, water, and sewage). Access to the plot is via a paved internal road. The house was inspected in 2012 and is well-maintained, requiring no financial investment. Heating is provided by a dual-function gas furnace. The house also includes a water purifier, air conditioning, and a fireplace.
House:
Ground floor: living room, kitchen, bathroom, hall, boiler room
1st floor: 3 rooms, bathroom, hall
2nd floor: large room
The house includes a large terrace and 2 balconies.
The house comes with a parking space
Location:
The house is located on Leśna Street in Bibice. The immediate area boasts a full range of services and shops. Excellent access to the city center is also available, as are public transport stops.
I'm open to collaboration with other agencies. I invite you to presentations. I provide support in obtaining a loan.
This announcement is for informational purposes only and does not constitute an offer within the meaning of Article 66, Section 1 of the Civil Code. The Real Estate Agency strives to ensure that the content of the announcements is accurate and up-to-date, but is not responsible for any inaccuracies, errors, or out-of-date information.
1 180 000,00 PLN (9 833,33 PLN)
Bbibice 5 pokoi 120m2 Taras 7 km od Krakowa
Dom na sprzedaż,
Bibice
Dane szczegółowe
- Typ transakcji: sprzedaż
- Typ nieruchomości: Dom
- Lokalizacja: Bibice
- Powierzchnia:120 m2
- Liczba pokoi: 5
- Rok budowy: 2012
- Liczba pięter: 2
-
Powierzchnia działki:
13 m2
- Numer oferty: 34964531945
- Cena: 1 180 000,00 PLN
- Cena za m2: 9 833,33 PLN
Kontakt z agentem: Białe Lwy - Nieruchomości
Białe Lwy - Nieruchomości
Opis nieruchomości
Mapa
Kontakt z agentem
Białe Lwy - Nieruchomości