Na sprzedaż nieruchomość o przeznaczeniu usługowym - dwie kondygnacje ( parter, podpiwniczenie/garaż podziemny) w wolnostojącym budynku wybudowanym w 2020r.
Nieruchomość (dwie kondygnacje) o łącznej powierzchni 325,39 m².
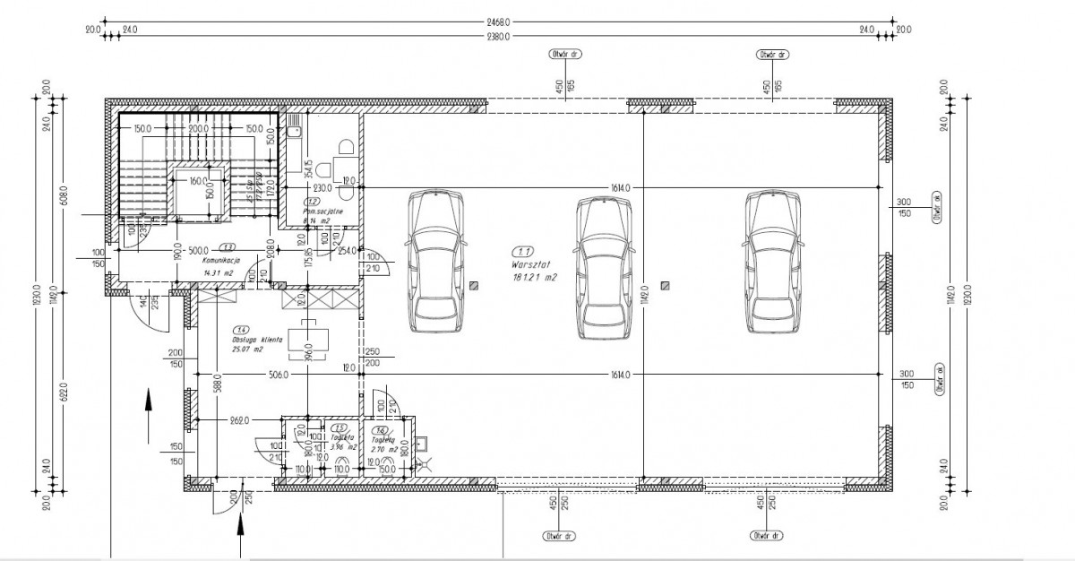
Parter - 235,39m2
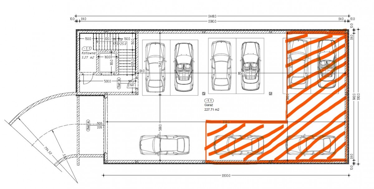
Kondygnacja podziemna - 90 m2
Do tego 6 miejsc na parkingu zewnętrznym .
Teren ogrodzony, z ładnym widokiem na las.
✅Idealne do przerobienia na hostel lub dowolny biznes (pokoje z antresolami - patrz wysokość lokalu).
✅ estetyczny budynek na uboczu, na górze nad lokalem kilkanaście lokali mieszkalnych
✅ aktualnie brak konieczności uzgodnień ze wspólnotą mieszkaniową (zarząd nieruchomością wspólną)
✅forma prawna - udział z notarialnym podziałem do wyłącznego korzystania z przedmiotowego lokalu
✅ wysokość kondygnacji - parter 4 m, piwnica/garaż 3 m
✅ grube stropy i posadzki z udźwigiem wystarczającym np. dla salonu samochodowego albo przychodni (tomograf)
✅aktualnie lokal podzielony ściankami działowymi i częściowo wynajęty na różne biznesy z generowanym przychodem około 10 000 zł/m-c
✅powierzchnia niezagospodarowana/niewynajęta - około 90 m²
umowy z najemcami na terminy nie dłuższe niż rok - zawarte bez formy notarialnej, niektóre z 777 k.p.c. co do płatności i opróżnienia
Nieruchomość sprzedawana w formie udziału z notarialnym podziałem do korzystania (brak możliwości sfinansowania kredytem).
Powierzchnia na kondygnacji podziemnej zaznaczona na pomarańczowo.
Roczny podatek: około 5400 zł
Miesięczny czynsz administracyjny bez mediów - około 450 zł, z ogrzewaniem około 1000 zł.
Media: Prąd, Gaz, woda z ujęcia własnego, szambo. Kanalizacja i podłączenie do sieci miejskiej w trakcie.
Lokalizacja: Warszawa Wesoła - ul. Piłsudskiego 6
W okolicy (ok. 200-300 m) pasaż usług, dyskonty , klub fitness , stacja paliw , gastronomia sieciowa .
Lokal położony przy ruchliwej drodze lokalnej
2 159 897,00 PLN (6 637,87 PLN)
Lokal pod przychodnię, hostel, auto-moto, gastro
Lokal handlowy/usługowy na sprzedaż,
Warszawa, Aleja marsz. Józefa Piłsudskiego
Dane szczegółowe
- Typ transakcji: sprzedaż
- Typ nieruchomości: Komercyjny
- Lokalizacja: Warszawa Wesoła, Aleja marsz. Józefa Piłsudskiego
- Powierzchnia:325,39 m2
- Liczba pokoi: 6
- Rok budowy: 2020
- Piętro: 0 z 2
- Numer oferty: 34964533978
- Cena: 2 159 897,00 PLN
- Cena za m2: 6 637,87 PLN
Kontakt z agentem: Białe Lwy - Nieruchomości
Białe Lwy - Nieruchomości
Opis nieruchomości
Mapa
Kontakt z agentem
Białe Lwy - Nieruchomości